Обяви За нас Контакти
Продава МАГАЗИН
град Габрово, Център
370 000 €
723 657.10 лв.

(385 €, 752.99 лв./m2)
Не се начислява ДДС
Коригирана в 17:39 на 3 февруари, 2026 год.
Обявата е посетена 988 пъти.
Площ:
960 m2
Етаж:
Партер от 3
Газ:
НЕ
ТEЦ:
НЕ
Строителство:
Тухла, Въведен в експлоатация 1980 - 1989 г.

Описание на имота:


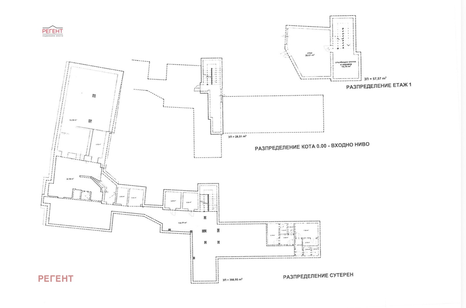
Представяме ви за продажба търговско помещение с отличен инвестиционен потенциал, разположено в идеалния център на гр. Габрово. Имотът е на два етажа с обща търговска площ от 356 кв.м, от които 251,60 кв.м. са на първия етаж и 104,40 кв.м на втория, свързани с елегантно извито вътрешно стълбище. Към обекта принадлежи и сутерен с площ от 543,95 кв.м със самостоятелен вход от задната част на сградата, където има обособени складови помещения и офисно пространство с площ 60,16 кв.в, което допълва функционалността на имота. За магазина има заден вход за зареждане, осигуряващ лесен достъп за логистика и обслужване на търговската дейност. Фасадата е с представителна стъклена витрина, а вътрешното състояние на помещението е в много добро общо състояние, с поддържани настилки, ремонтирана тоалетна за персонала и цялостно запазен интериор. Имотът се продава заедно със съответните идеални части от общите части на сградата и правото на строеж върху общинска земя. В момента в търговското помещение има наемател с развит и печеливш бизнес, което го прави отлично решение за инвеститори, търсещи стабилен доход и сигурност на вложението си. Ако това е търсеният от вас имот , обадете ни се!
Брокер : Павлина Бойновска 0894 386 388
Особености
Тухла
С действащ бизнес
Обзаведен
За контакт:
0894386388
Брокер:
Павлина Бойновска
0894386388
Още оферти от брокера: Продава | Дава под наем | Купува | Наема
Агенция:
РЕГЕНТ
0884 800 810; 066 800 850
РЕГЕНТ logo
Медал за прослужено време
В imot.bg от 2004 г.
regent.imot.bg
Адрес:
област Габрово, гр. Габрово, 13, Opalchenska - str.
http://www.regent.bg
ИЗПРАТИ ЗАПИТВАНЕ
ИЗПРАТИ ЗАПИТВАНЕТО

Продава МАГАЗИН
град Габрово, Център
Обява: 1l175915134982002

370 000 €
723 657.10 лв.
(385 €, 752.99 лв./m2)

Не се начислява ДДС
ЗАПАЗИ ОБЯВАТА

Местоположение: град Габрово, Център

Допълнителни данни за имотите в района и сравнение с други райони

Покажи

Период

и 2 месеца

* Средните цени са определени чрез медианна стойност